Terrenos en venta

Cúllar Vega
71.900 €
273 m2 273 m2

Terrenos en venta

Cúllar Vega

Descripción anuncio

Oportunidad Única: Terreno Urbano en Venta de 273 m2

Ubicado en una de las zonas más prometedoras y en crecimiento de la ciudad, este terreno urbano de 273 m2 es ideal para construir la casa de tus sueños, un proyecto inmobiliario o un local comercial. Su ubicación estratégica ofrece fácil acceso a servicios esenciales, como escuelas, hospitales, supermercados y transporte público, lo que lo convierte en una opción atractiva tanto para familias como para inversores.

Características del Terreno:

Superficie: 273 m2, con dimensiones que permiten una construcción versátil y adaptada a tus necesidades.
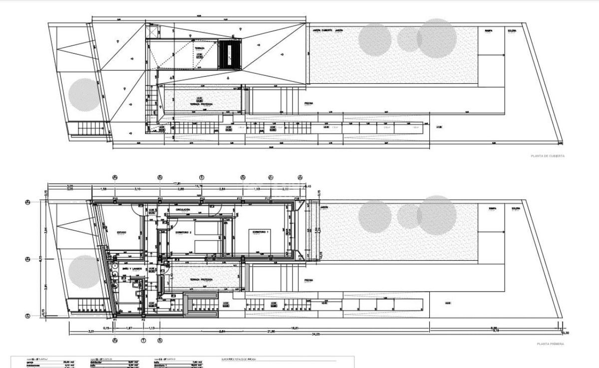
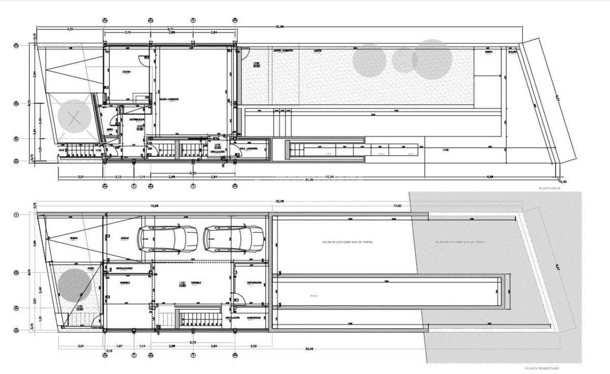
Uso de Suelo: Apto para residencial, lo que brinda la posibilidad de desarrollar una vivienda unifamiliar, apartamentos o un negocio.
Servicios Básicos: Cuenta con acceso a agua potable, electricidad y alcantarillado, lo que facilita la construcción y el desarrollo inmediato.
Entorno: Situado en un vecindario tranquilo y seguro, rodeado de áreas verdes, parques y espacios recreativos, ideal para disfrutar de un estilo de vida saludable.
Ventajas Adicionales:

Proximidad a Vías Principales: A solo minutos de las principales avenidas, lo que facilita el desplazamiento hacia el centro de la ciudad y otras áreas clave.
Crecimiento Urbanístico: La zona está en pleno desarrollo, con nuevas obras y mejoras en infraestructura, lo que asegura un aumento en el valor de la propiedad a largo plazo.
Oportunidad de Inversión: Perfecto para aquellos que buscan diversificar su portafolio o realizar un proyecto que potencie su inversión.
No dejes pasar esta oportunidad de adquirir un terreno con un gran potencial. Contáctanos para más información o para agendar una visita y explorar todas las posibilidades que este espacio tiene para ofrecerte. ¡El futuro de tu proyecto comienza aquí!

Ver más

Características

Ref.:
599676
Libre:
No
Tipo de inmueble:
Popular
Año de construcción:
2024
Ver más
Precio Precio
71.900 €
Cuota mensual Cuota mensual
€ 232 / mes

Clase energética

Este inmueble está exento de clase energética
Año de construcción:
2024

Servicios cercanos

Transporte público Transporte público
Avenida de Andalucía 4
Avenida de Andalucía 4
170 m
Transporte público
480 m
Colegios Colegios
Colegio de Educación Infantil La Viña
390 m
Instituto de Educación Secundaria Arabuleila
440 m
Colegio de Educación Infantil y Primaria Francisco Ayala
460 m
Colegio de Educación Infantil y Primaria Pilar Izquierdo
1,2 Km
Colegio Público La Almohada
1,9 Km
Farmacias Farmacias
Progreso
2,7 Km
Las Gabias
2,8 Km
Supermercados Supermercados
Mercadona
1,3 Km
Spar
2,2 Km
Consum
2,5 Km
Covirán
2,8 Km
Lidl
2,9 Km
Tiendas Tiendas
Tiendas
2,2 Km
La Espiga
2,2 Km
Pizzería Telepizza
2,3 Km
Siete Colores
2,7 Km
Virgen de las Nieves
2,7 Km
Bar Bar
Entre Amigos
1,6 Km
Churrería "La Fuente"
2,7 Km
restaurantes restaurantes
Restaurante JR
650 m
Club de Campo
2,1 Km
Restaurante El Barco
2,1 Km
El Barco
2,2 Km
Los Palomos
2,8 Km
Ver más

Calcula tu hipoteca

Simple y sin compromiso
Entrada
%
al mes
Hipoteca
%
El resultado de esta simulación es orientativo. Los datos indicados no corresponden a condiciones reales de productos y no implican compromiso, obligación o vínculo jurídico-legal para el Grupo Tecnocasa.

Solicita un asesoramiento

Introduce tus datos
GRACIAS POR CONTACTAR CON NOSOTROS.
Esta oficina de Kìron se pondrá en contacto contigo lo antes posible para ofrecerte un asesoramiento financiero más completo y acorde a la información que nos has facilitado.
Franquiciado
Estudio Eurovegas Slu
Calle Miguel Hernández, S/N 18195 Cúllar Vega (GR)
Calle Miguel Hernández, S/N 18195 Cúllar Vega (GR) Zona: VEGAS DEL GENIL
lunes 10:00–14:00, 16:30–20:30 martes 10:00–14:00, 16:30–20:30 miércoles 10:00–14:00, 16:30–20:30 jueves 10:00–14:00, 16:30–20:30 viernes 10:00–14:00, 16:30–20:30 sábado 10:00–14:00, domingo Cerrado

Nuestro equipo


  • Antonio Gavilan
    Responsable

  • Paula Sanchez
    Franquiciado

  • Sandra Prieto
    Auxiliar Administrativa

  • Juan Pedro Escobar Bayo
    Colaborador
Franquiciado
Estudio Eurovegas Slu
Calle Miguel Hernández, S/N 18195 Cúllar Vega (GR)

Franquiciado
Estudio Eurovegas Slu
Franquiciado
Estudio Eurovegas Slu

2026 Ibero Group Tecnocasa Services, S.L.U. - CIF B-65870776 - C/ Pallars, nº 1-3 Parque de Negocios Mas Blau II, 08820, El Prat de Llobregat (Barcelona-España). Red en franquicia - Cada sociedad franquiciada tiene su propio titular y es independiente del franquiciador.

Política de privacidad | Aviso legal | Pólitica de las Cookies | Información al consumidor | | Canal ético